Главная
Интерьеры
Ландшафты
/БЛАГОУСТРОЙСТВО
ТЕРРИТОРИИ.
Московская обл., дер. Дыдылдино.
2011г
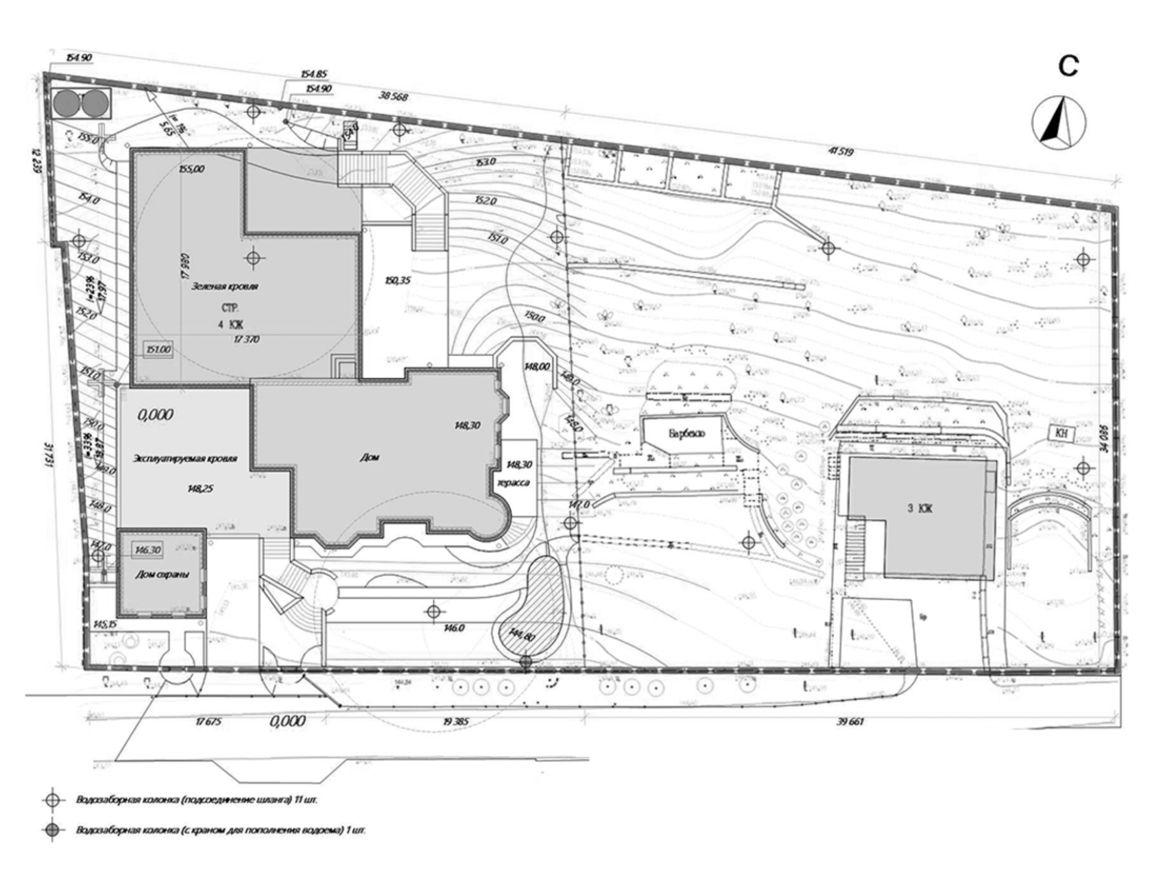
ЭСКИЗЫ.
План.
ЭСКИЗЫ.
План.
ЭСКИЗЫ.
Гидротехническое сооружение.
ЭСКИЗЫ.
Мощение.
РЕАЛИЗАЦИЯ.
Мощение.
РЕАЛИЗАЦИЯ.
ЭСКИЗЫ.
Посадки.
РЕАЛИЗАЦИЯ.
До и после.
РЕАЛИЗАЦИЯ.
Посадки.
ЭСКИЗЫ.
Зеленая кровля.
ЭСКИЗЫ.
Вертикальная планировска грунта зеленой кровли.
ЭСКИЗЫ.
Зеленая кровля.
План организации уклона ЦП по плите перекрытия.
ЭСКИЗЫ.
Зеленая кровля. План жестких конструкций.
РЕАЛИЗАЦИЯ.
Зеленая кровля.
РЕАЛИЗАЦИЯ.
Зеленая кровля.
Главная
Интерьеры
Ландшафты
Made on
Tilda