/ДИЗАЙН-ПРОЕКТ
3-Х КОМНАТНОЙ КВАРТИРЫ.

Москва, ул Мытная


2016г
Немаловажный вопрос: как оформить окна?

Поиск ответа на него начинается на этапе проектирования потолков, продолжается на этапе подготовки электротехнической части проекта и завершается в период подбора текстиля для пошива портьер. Учитываются все ньюансы: цвет мебели, цвет напольных и стеновых покрытий, стиль и отделка светильников и т. д.Когда вопрос с расстановкой и габаритами мебели решен,
когда есть понимание стиля, то есть возможность подобрать мебель.

Подбор мебели мы осуществляем исходя из бюджетной задачи,
сроков изготовления или поставки мебели. Часто внутри проекта
нам приходится решать вопрос индивидуального проектирования мебели: кухня, встроенные шкафы, отдельные элементы интерьера.


ЭСКИЗЫ.
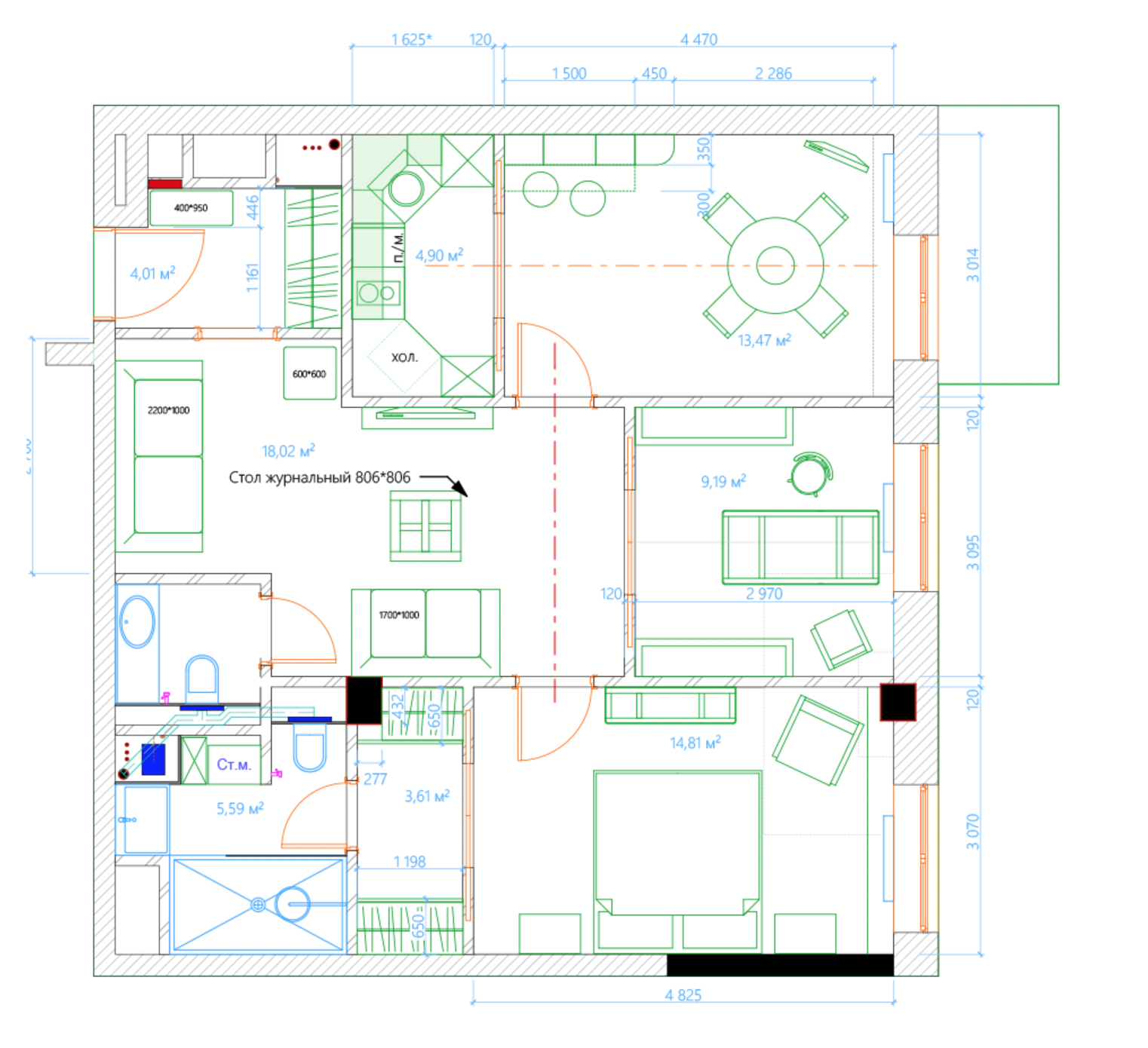
План расстановки мебели.


КОЛЛАЖИ.
Подбор цветовой гаммы.


РЕАЛИЗАЦИЯ.
Подбор цветовой гаммы.


КОЛЛАЖИ.
Подбор цветовой гаммы.


РЕАЛИЗАЦИЯ.


Made on
Tilda