Главная
Интерьеры
Ландшафты
/БЛАГОУСТРОЙСТВО
ПАТТИО.
Новорязанское шоссе.
2021г
ЭСКИЗЫ.
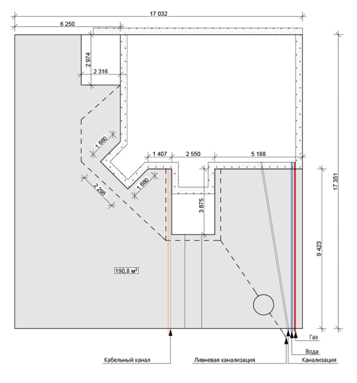
Обмерный план.
ЭСКИЗЫ.
Подбор отделочного материалла.
ЭСКИЗЫ.
Планировочные решения.
ЭСКИЗЫ.
Озеленение.
ЭСКИЗЫ.
Планировочные решения. Вид со стороны балкона.
Главная
Интерьеры
Ландшафты
Made on
Tilda